SILVERSTREAM ROAD

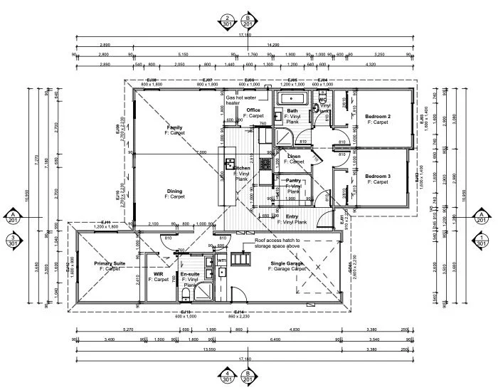
3 Bedroom

117 Silverstream Road features
New 3 Bed Home Build Wellington by Ground Up Homes - Kitchen

Crafted for Everyday Living

This beautifully considered three-bedroom home on Silverstream Road was designed for simplicity, function, and effortless day-to-day living. Created for newlywed clients beginning their next chapter together, the home balances connection and privacy through a thoughtful single-level layout.

From the warm cedar exterior that welcomes you in to the subtle colour accents throughout the interior, every detail has been carefully chosen to create a space that feels calm, modern, and inviting.

The kitchen features timeless shaker-style cabinetry with carefully integrated colour detailing, while clever storage solutions including a generous walk-in linen cupboard keep the home organised and clutter free. A separate office provides a dedicated work-from-home space, and the internal garage adds everyday practicality.

It is a home that proves thoughtful design does not need to be complicated. It simply needs to be purposeful, warm, and built for real life.

New 3 Bed Home Build Wellington by Ground Up Homes 4.jpg

At a Glance

  • Single-storey home

  • Three bedrooms and two bathrooms

  • Separate office or study space

  • Designed for simple, functional everyday living

  • Shaker-style kitchen cabinetry

  • Subtle colour features in the kitchen and internal doors

  • Large walk-in linen storage cupboard

  • Internal access garage

  • Warm cedar exterior cladding

  • Built for newlyweds starting their next chapter

a closer look

Take a closer look at the thoughtful details, warm finishes, and practical design choices that make this Silverstream Road home both welcoming and beautifully functional.

what the CLIENT says

Hear what Stu and Liz have to say about the experience of building with Ground Up Homes.

VIEW THE PLANS

ELEVATION PLAN

FLOOR PLAN

FOUNDATION PLAN

Ready to bring your dream home to life?

Thank you for considering us for your building needs. We look forward to working together and bringing your dreams to life β€” with the care, commitment, and personal touch that only a family-run business can provide.